Bent u op zoek naar een nieuwbouw appartement of een mooie investering?

Kwaliteit, duurzaamheid en levenskwaliteit
Deze doelstellingen genieten de grootste aandacht bij het maken van elke keuze tijdens het uitwerken van onze projecten. Dit begint reeds bij de keuze van de locatie en eindigt pas als het laatste detail van de afwerking gekozen is, en een tevreden nieuwe eigenaar zijn intrek neemt.

Ons aanbod

Nieuw
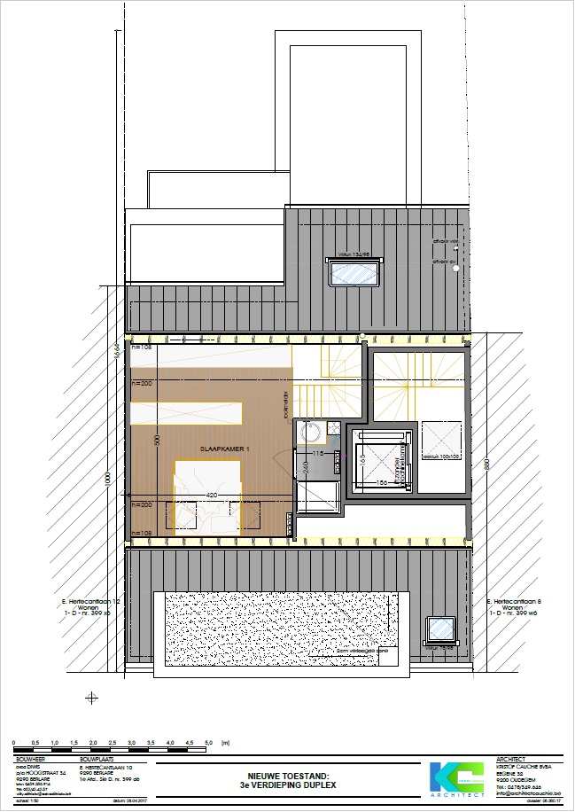
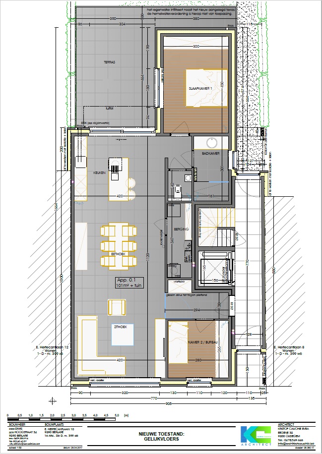
Drie nieuwbouw appartementen gelegen aan de Emiel Hertecantlaan 10 te Berlare 9290.


Elk appartement is ontworpen met oog voor leefconfort en duurzaamheid.


Ook zijn er drie garages beschikbaar, deze zijn bereikbaar langs de Vennewegel aan de achterzijde van het complex.


Prijs per appartement €238.000,00 (excl. kosten)
Prijs per garage €19.500,00 (excl. kosten)

Contacteer ons voor alle informatie

Voor alle informatie aangaande één van onze projecten kan u ons vrijblijvend contacteren op info@diwis.be of via 0476/40.5.90. Ook indien wij u op welke manier dan ook kunnen bijstaan bij de verwezelijking van lopende projecten vindt u in ons steeds een sterke partner.